pic

Спаренный противопожарный витраж / серия FRM7211

Артикул: 84e29600e78d
5.00/5

30 200 

В наличии, доставим бесплатно
Самовывоз – бесплатно
Монтаж доступен – от 3 500 ₽

Доставка по Пятигорску

Стоимость доставки по Пятигорску – бесплатно
подробнее

Способы оплаты

Оплата по счету для юр.лиц(работаем с НДС), картами или онлайн-переводом
все способы оплаты

Монтаж конструкций

Монтаж "под ключ" от 2 500 руб/м² . Имеем лицензию МЧС на проведение монтажных работ огнестойких конструкций.

Требуется консультация?

Поможем с подбором конструкций и подготовим коммерческое предложение в течении 40 минут.
Открыть чат с менеджером →

Примеры реализованных проектов

Спаренный противопожарный витраж / серия FRM7211

Вкратце про изделие

Спаренный противопожарный витраж серии FRM7211 представляет собой интегрированный элемент комплексной системы пожарной безопасности зданий и сооружений. Конструкция обеспечивает единство архитектурного решения при одновременном соблюдении требований огнестойкости и дымогазонепроницаемости. Системный подход к проектированию позволяет создавать непрерывные противопожарные барьеры в сочетании с другими элементами защиты. Данная серия разработана с учетом современных требований к интеграции систем безопасности и архитектурной выразительности объектов.

Место в комплексной системе противопожарной защиты

Витраж FRM7211 функционирует как составная часть единой системы огнезащиты, взаимодействуя с противопожарными перегородками и другими барьерными элементами. Спаренная конструкция обеспечивает повышенную надежность системы благодаря дублированию критически важных узлов и соединений. Интеграция с системами автоматического пожаротушения и дымоудаления осуществляется через специализированные технологические проемы и каналы. Комплексный подход к проектированию учитывает взаимодействие с инженерными коммуникациями и системами безопасности здания.

Системные требования и стандарты

Проектирование и монтаж спаренных витражей осуществляется в соответствии с требованиями ГОСТ Р 53308-2009 и СНиП 21-01-97. Системная интеграция предусматривает соблюдение единых стандартов огнестойкости для всех элементов противопожарного барьера. Комплексное решение включает расчет теплового воздействия на смежные конструкции и обеспечение совместимости с существующими системами безопасности. Техническое задание разрабатывается с учетом специфики объекта и требований к интеграции различных подсистем защиты.

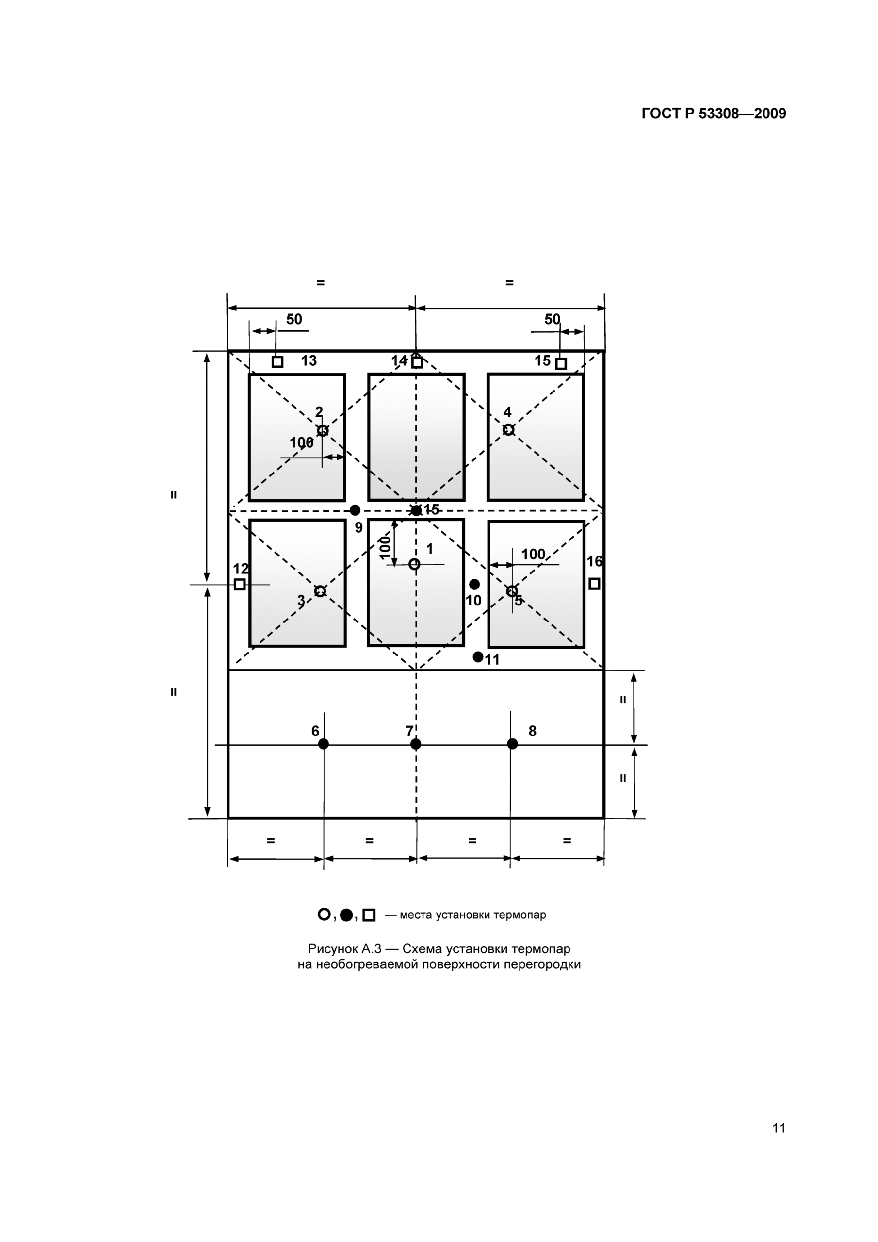
Согласно ГОСТ Р 53308-2009, противопожарные витражи должны обеспечивать нормируемые пределы огнестойкости при интеграции в единую систему противопожарной защиты здания.

Характеристика системы Показатель Преимущества интеграции
Предел огнестойкости EI 60-120 Единая временная характеристика
Дымогазонепроницаемость S Комплексная защита от задымления
Теплоизоляция I Предотвращение распространения тепла
Системная совместимость 100% Бесшовная интеграция элементов

Комплексные решения и проектирование

Системный подход Fire-Max предусматривает разработку комплексных решений «под ключ» для объектов различного назначения. Единая концепция проектирования обеспечивает оптимальное сочетание функциональности, безопасности и эстетической составляющей архитектурного решения. Интеграция спаренных витражей с противопожарными витражами других серий создает гибкую систему зонирования пространства. Комплексность подхода включает разработку технических решений для нестандартных архитектурных задач и сложных инженерных условий.

Размерные параметры Минимальные значения Максимальные значения
Ширина конструкции 800 мм 3000 мм
Высота конструкции 1200 мм 4500 мм
Толщина профиля 65 мм 120 мм

Синергетические эффекты системной интеграции

Взаимодействие компонентов системы создает синергетический эффект, превышающий сумму характеристик отдельных элементов. Спаренная конструкция обеспечивает дополнительную степень защиты при минимальном увеличении габаритных размеров и веса системы. Интеграция с автоматизированными системами управления зданием позволяет реализовать сценарии адаптивного реагирования на различные типы угроз. Комплексный мониторинг состояния системы обеспечивается через единую диспетчерскую систему управления безопасностью объекта.

Ключевые преимущества системной интеграции включают:

  • Унифицированные технические решения для всех элементов системы
  • Оптимизированные логистические процессы поставки и монтажа
  • Единая система технического обслуживания и сервисного сопровождения
  • Комплексное гарантийное обслуживание всех компонентов системы
  • Возможность поэтапного развития и модернизации системы безопасности

Практическое применение в проектах

Спаренные витражи серии FRM7211 успешно интегрированы в систему безопасности торгово-развлекательных центров, офисных комплексов и медицинских учреждений. Комплексные решения Fire-Max реализованы на объектах федерального значения, включая аэропорты и транспортные узлы. Системный подход позволяет адаптировать стандартные решения под специфические требования каждого проекта. Интеграция с существующими системами безопасности обеспечивает непрерывность защиты при реконструкции и модернизации зданий.

Доставка по Пятигорску

 Стоимость доставки. Сроки  При заказе до.
 Бесплатно  15 дн.  до 12 ч.

Доставка по России и в отдаленные регионы

 Стоимость доставки. Сроки  При заказе до.
 Бесплатно  15 дн.  до 12 ч.

Детали

Огнестойкость

EI 15, EI 30, EI 45, EI 60

Профиль

Татпроф

Размеры

Любые под заказ

Стекло

огнеупорное

Цвет

Любой по RAL

1 отзыв на Спаренный противопожарный витраж / серия FRM7211

5,0
На основании 1 отзыва
5 звёзд
100
100%
4 звезды
0%
3 звезды
0%
2 звезды
0%
1 звезда
0%
  1. Анна

    Хороший качественный витраж, сделан на совесть. Постановка прошла успешно, мы довольны.

Добавить отзыв
Выберите свой регион
Запросить коммерческое предложение
Оформление заказа

Заполните форму заказа и мы свяжемся с вами в течение 15 минут в рабочее время.

Нажимая кнопку «Отправить заказ», вы соглашаетесь на обработку персональных данных и с условиями Политикой конфиденциальности.